Вітаємо!
В нас наявна українська версія сайту. Бажаєте перейти на неї?
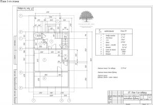
Объект Херсон-2

Площадь полов - 100 м2

Двухэтажный дом 100 м2 с необычным панорамным балконом на очень узком участке для семьи из 2-х человек по индивидуальному проекту.
Локация: г. Херсон
Этажность: 2
Площадь полов: 100 м2
Фундамент: железобетонная лента
Материал полов и стен: на полу - утепленная стяжка, стены - сип панели, скаты кровли - утепленная стропильная система
Материал кровли: металлочерепица
Комплектация: "Закрытый дом"
Проект: индивидуальный
Год и месяц начала строительства: январь 2016
Год и месяц окончания строительства: февраль2016
Перед нами стояла сложная задача - возвести дом в 100 м2 на очень маленьком участке, со всех сторон окруженном другими домами.
Украшением дома является большой балкон на всю ширину дома с панорамным остеклением.
К сожалению, из-за размеров участка и расположения забора не представлятся возможным сделать качественные фотографии фасада.
СТОИМСТЬ
Актуальную стоимость можно получить:
Оставив заявку, нажатием кнопки "Задать вопрос"
или написать нам на почту ukrdom.smeta@gmail.com
в Viber, Telegram, WhatsApp +38 (067) 378-63-79
или звоните по телфеону +38 (067) 378-63-79
Наши готовые дома из сип панелей
Компания "Украинский дом" построит для Вас канадский дом из сип панелей по любому проекту. На этой странице представлены наши готовые объекты - это sip дома, которые мы уже построили в той или иной части Украины.
Лучшие из проектов домов по канадской технологии содержатся в нашей коллекции, которая постоянно пополняется и содержит кроме самого проекта уже готовый актуальный расчет его стоимости!
Используя сип панели в строительстве, Вы также можете применить абсолютно любую фасадную отделку, и внутреннюю отделку без особых усилий и дополнительных временных и финансовых затрат.
На этой странице представлены наши готовые объекты - это sip дома, которые мы уже построили в той или иной части Украины. Для нас это - своеобразное портфолио, для Вас - ориентир того, как мы строим. Кроме того, на примере этих домов Вы можете наглядно увидеть:
01.Как именно может быть преобразован изначальный эскизный проект по желанию заказчика, с внесением его индивидуальных пожеланий. И как он выглядит в итоге, в виде готового дома. (Сам проект и все изменения в него "под Вас" мы делаем бесплатно).
02.Как выглядит строительная площадка при использовании канадской технологии.
03.Как Выглядит sip дом разной степени готовности.
04.Какие материалы и типы фундаментов мы используем кроме сип панелей.
Важно также то, что эти дома можно использовать в качеств образца. Т.к. они уже построены, их смета точно известна. Вы можете заказать строительство точно такого же дома!