Вітаємо!
В нас наявна українська версія сайту. Бажаєте перейти на неї?
Мы строим дома на территории Украины и ЕС.
Объект Краматорск-1
_result.jpg)
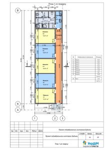
Площадь полов - 86 м2
+ Крыльцо - 2,5 м2
_result.jpg)
Локация: Донецкая обл. г. Краматорск
Этажность: одноэтажный
Площадь полов: 86 м2 + Крыльцо - 2,5 м2
Фундамент: свайный (ТИСЭ)
Материал полов и стен: сип панели
Материал кровли: битумная черепица
Комплектация: "Фундамент, домокомплект, покрівля"
Проект: индивидуальный
Год и месяц начала строительства: 30 ноября 2020
Год и месяц окончания строительства: 24 декабря 2020
СТОИМСТЬ
Актуальную стоимость можно получить:
Оставив заявку, нажатием кнопки "Задать вопрос"
или написать нам на почту ukrdom.smeta@gmail.com
в Viber, Telegram, WhatsApp +38 (067) 378-63-79
или звоните по телфеону +38 (067) 378-63-79
Наши готовые дома из сип панелей
Компания "Украинский дом" построит для Вас канадский дом из сип панелей по любому проекту. На этой странице представлены наши готовые объекты - это sip дома, которые мы уже построили в той или иной части Украины.
Лучшие из проектов домов по канадской технологии содержатся в нашей коллекции, которая постоянно пополняется и содержит кроме самого проекта уже готовый актуальный расчет его стоимости!
Используя сип панели в строительстве, Вы также можете применить абсолютно любую фасадную отделку, и внутреннюю отделку без особых усилий и дополнительных временных и финансовых затрат.
На этой странице представлены наши готовые объекты - это sip дома, которые мы уже построили в той или иной части Украины. Для нас это - своеобразное портфолио, для Вас - ориентир того, как мы строим. Кроме того, на примере этих домов Вы можете наглядно увидеть:
01.Как именно может быть преобразован изначальный эскизный проект по желанию заказчика, с внесением его индивидуальных пожеланий. И как он выглядит в итоге, в виде готового дома. (Сам проект и все изменения в него "под Вас" мы делаем бесплатно).
02.Как выглядит строительная площадка при использовании канадской технологии.
03.Как Выглядит sip дом разной степени готовности.
04.Какие материалы и типы фундаментов мы используем кроме сип панелей.
Важно также то, что эти дома можно использовать в качеств образца. Т.к. они уже построены, их смета точно известна. Вы можете заказать строительство точно такого же дома!