Вітаємо!
В нас наявна українська версія сайту. Бажаєте перейти на неї?
Мы строим дома на территории Украины и ЕС.
Объект Запорожье-12

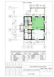
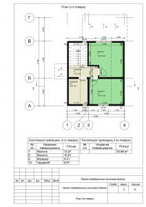
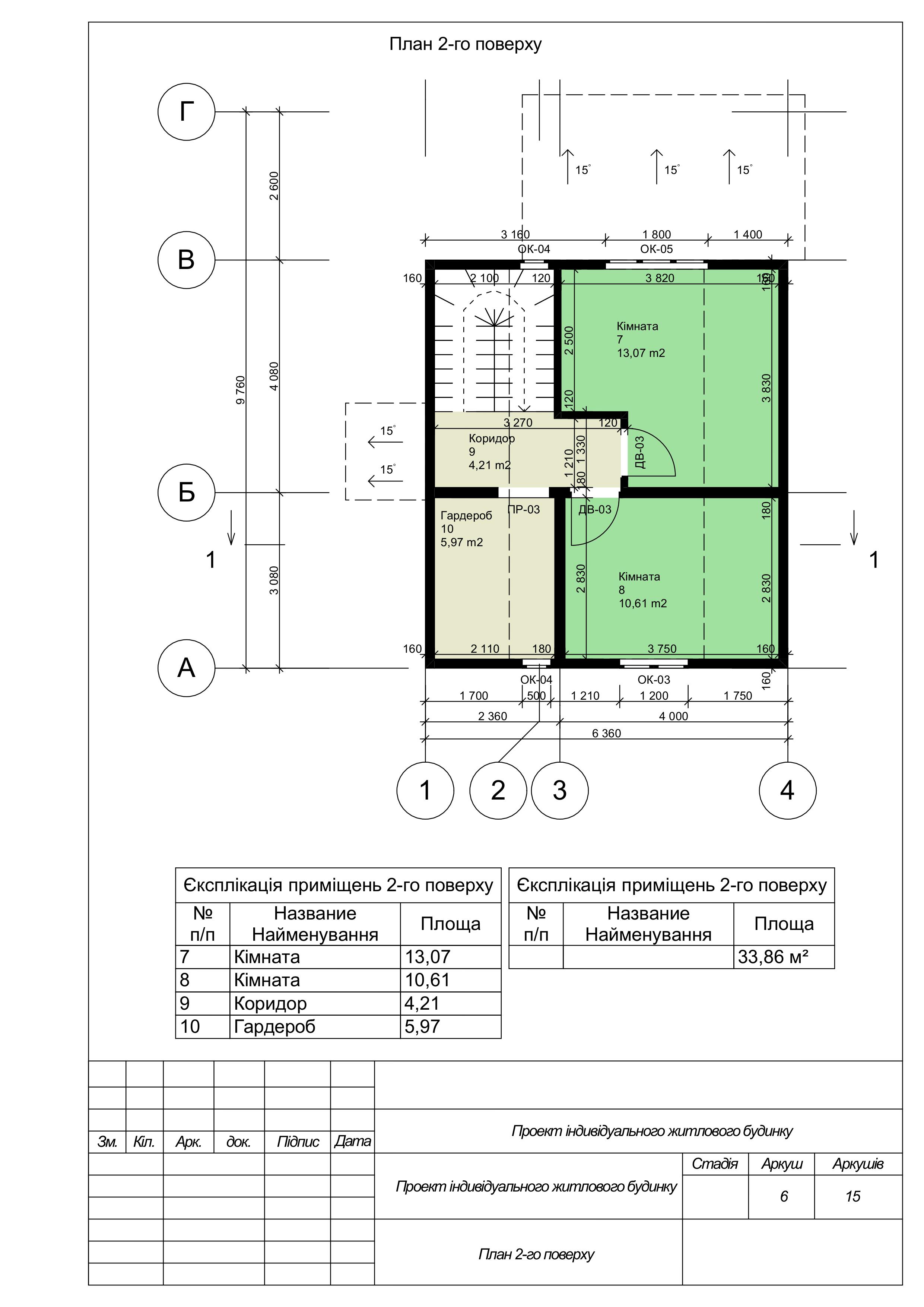
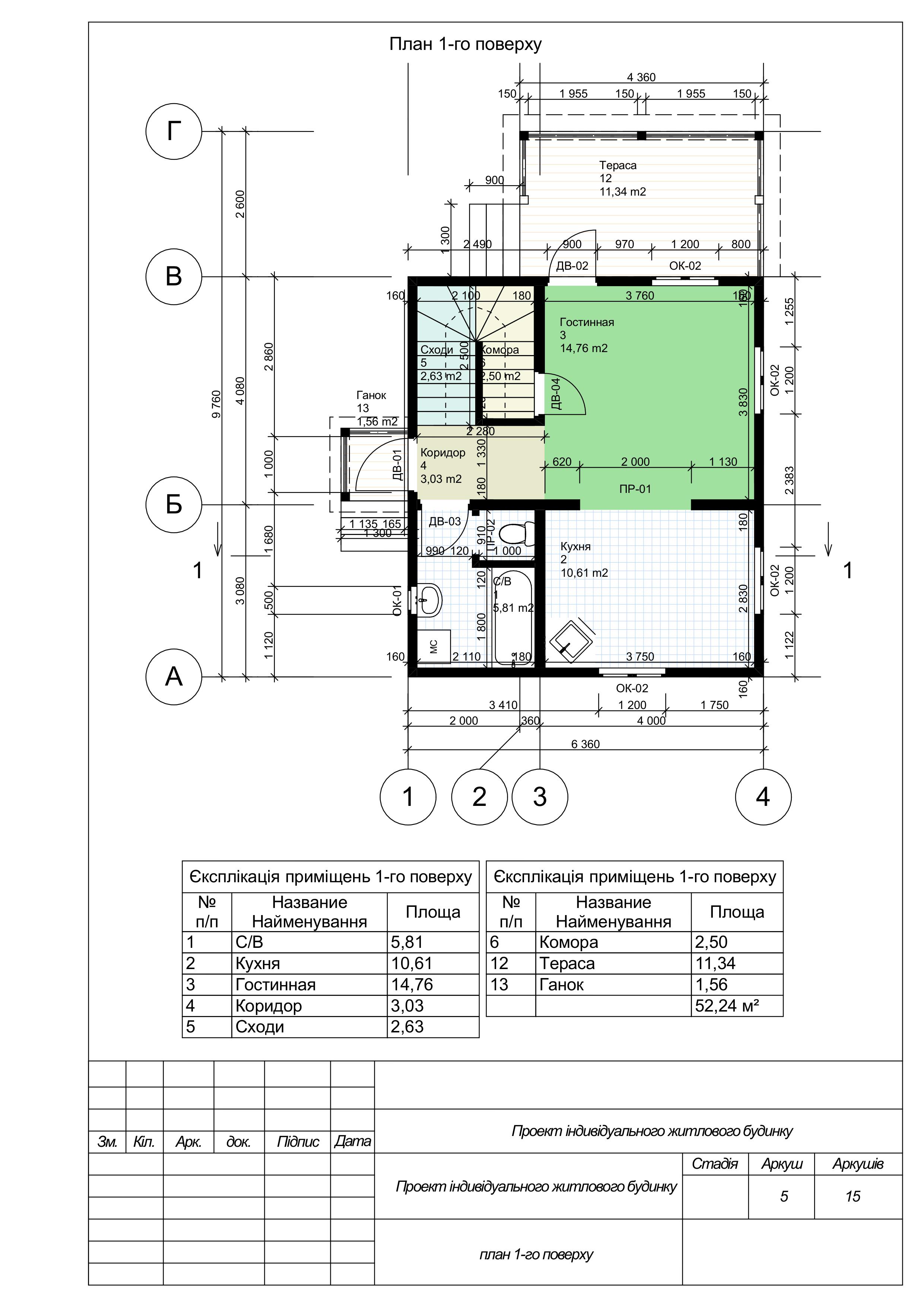
Площадь полов - 73 м2
Терраса - 13 м2
г. Вольнянск
Запорожская область

В апреле 2020 года мы приступили к строительству двухэтажного дома из СИП-панелей в городе Вольнянске Запорожской области. Наша компания строит дома под ключ.
Стоимость этого дома и работы, которые входят в эту стоимость, вы можете оставив заявку.
Стоимость постройки дома по проекту Запорожье-12 указана на 11.04.20.
Одноэтажный дом с мансардой площадью полов 73 квадратных метра ПЛЮС терраса 13 квадратных метров, высота потолков - 2,8 метра.
Проект полностью разработан компанией "Украинский Дом". При заказе на постройку дома, проект будет предоставлен бесплатно.
Фасадная отделка на этом доме:
- фасадные панели U-Plast
- подшивка и водосток Docke
- отделка террасы деревом
Стоимость без накладных расходов и ввода коммуникаций в дом. Стоимость террасы включена.
У нас много проектов другой площади, если этот проект вам не подходит.
Стоимость каждого проекта может быть адаптирована (в разумных пределах) под финансовые возможности Заказчика.
Смету смотрите в фото галереи.
Дом производится по технологии sip-строительства. Новые фото со строительной площадки вы можете посмотреть на сайте или у нас в Фейсбуке.
Строительство ведет бригада которую возглавляет Максим, вы его могли уже видеть на наших других объектах.
Мы закончили строительство этого дома в июле 2020. Смотрите видео о доме у нас на ютубе.
Актуальную стоимость можно получить:
Оставив заявку, нажатием кнопки "Задать вопрос"
или написать нам на почту ukrdom.smeta@gmail.com
в Viber, Telegram, WhatsApp +38 (067) 378-63-79
или звоните по телфеону +38 (067) 378-63-79
Наши готовые дома из сип панелей
Компания "Украинский дом" построит для Вас канадский дом из сип панелей по любому проекту. На этой странице представлены наши готовые объекты - это sip дома, которые мы уже построили в той или иной части Украины.
Лучшие из проектов домов по канадской технологии содержатся в нашей коллекции, которая постоянно пополняется и содержит кроме самого проекта уже готовый актуальный расчет его стоимости!
Используя сип панели в строительстве, Вы также можете применить абсолютно любую фасадную отделку, и внутреннюю отделку без особых усилий и дополнительных временных и финансовых затрат.
На этой странице представлены наши готовые объекты - это sip дома, которые мы уже построили в той или иной части Украины. Для нас это - своеобразное портфолио, для Вас - ориентир того, как мы строим. Кроме того, на примере этих домов Вы можете наглядно увидеть:
01.Как именно может быть преобразован изначальный эскизный проект по желанию заказчика, с внесением его индивидуальных пожеланий. И как он выглядит в итоге, в виде готового дома. (Сам проект и все изменения в него "под Вас" мы делаем бесплатно).
02.Как выглядит строительная площадка при использовании канадской технологии.
03.Как Выглядит sip дом разной степени готовности.
04.Какие материалы и типы фундаментов мы используем кроме сип панелей.
Важно также то, что эти дома можно использовать в качеств образца. Т.к. они уже построены, их смета точно известна. Вы можете заказать строительство точно такого же дома!